Reserve at Black Diamond
Lecanto, Florida
CITRUS COUNTY
The Reserve at Black Diamond is located in Citrus County and adjacent to Black Diamond Ranch Golf Course. Citrus County was created in 1887 and was formerly part of Hernando County. It was named for the county's citrus trees. The rich historical culture and variety of shops, water recreation, golfing, and dining experiences, make Citrus County one of the most enjoyable places on the west coast.



Citrus County on the move.
Florida is now the third most populous state and by 2030, 26 million Floridians will call Florida homeCounty Population Growth
162,529 in 2022 up from 141,177 in 2010-15.%
Cities of Citrus County
Inverness, Crystal River, Homosassa, Lecanto, Black Diamond
Citrus County Population
Increased 9 of the 12 years between 2010-2022
Cost of Living
12.2% lower than the U.S. avergae
Home Sales
22 days on market compared to 28 days last year
In October 2023
Home prices were up 2.0% compared to last year
MANATEE CAPITAL OF THE WORLD
The Reserve at Black Diamond is only a few short miles from the city of Crystal River, known as the Manatee capital of the world. Discover Florida’s soul in the warm Gulf water, spring-fed rivers, gentle manatees, great fishing and bountiful lakes. Swim with the manatees, explore the area lakes and rivers, reel in Florida’s best fishing, taste fish-to-fork cuisine, play great golf courses, take a hike through unspoiled forests, dive for scallops, cycle on one of America’s top-rated trails, and discover our parks and attractions.



PARKS AND RECREATION
Expect a community that promotes parks, recreation and walk-ability. With the YMCA adjacent to the community all the amenities you can imagine are at your fingertips. Maybe you want to use your golf cart on one of the many wide multi use trails and visit the shoppes at Black Diamond, which will be anchored by a super Target and include a free standing Starbucks, Panera, Aldi, Tropical Smoothies, Texas Roadhouse and 7-Eleven.


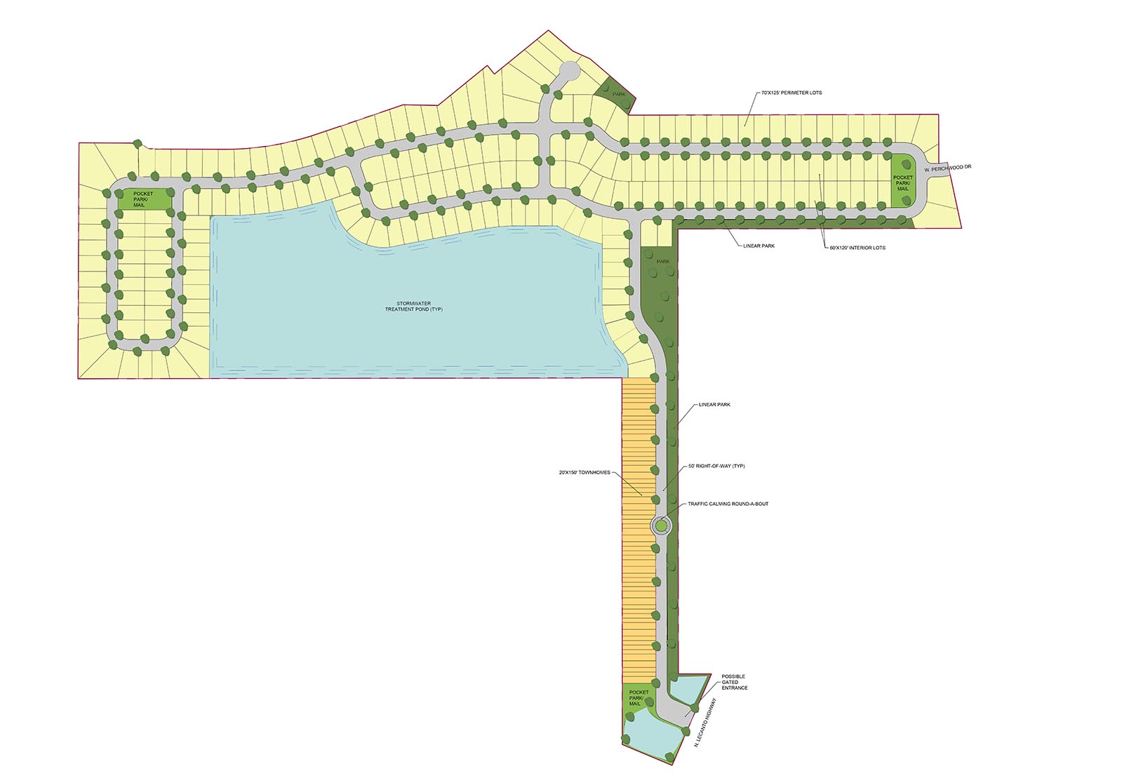
PROPERTY DETAILS
GROCERY AND RETAIL
Reserve at Black Diamond has been planned around retail shopping and grocery anchor brands allowing our residents to make their every day lives easier.



Reserve at Black Diamond
Citrus County, FL
Call us.
407.542.6120
Email us.
info@dixdevelopments.com

